planovo

TT 16 – “Tarpan”

Dom jednorodzinny

1Łazienki
0Sypialnie
86.35

0,00 zł

Podstawowe informacje

Piętra

1

Pokoje

5

Łazienki

1

Sypialnie

0

Powierzchnia

86.35

Type zabudowy

Dom jednorodzinny

Opis

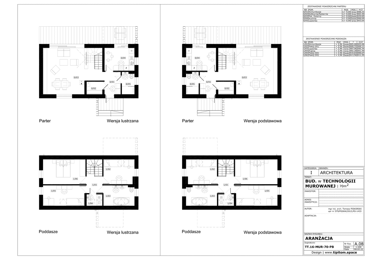
Budynek na kondygnacji parteru posiada część dzienną oraz niezależną kuchnię typową dla regionalizmu budownictwa wiejskiego minionych czasów. Jedna z dostępnych wersji projektu przewiduje połączoną część dzienną z aneksem kuchennym oraz dodatkowy pokój zamiast wydzielonej kuchni. Ponadto mamy do dyspozycji węzeł sanitarny i zaplecze techniczne, w skład którego wchodzi kotłownia, z możliwością zaaranżowania niewielkiej spiżarni. Na poddaszu znajdziemy 3 przytulne pokoje w tym nieco większą sypialnię, łazienkę oraz niezależną pralnię. W SKŁAD PROJEKTU WCHODZI: PROJEKT ARCHITEKTONICZNY BUDOWLANY PROJEKT KONSTRUKCYJNY WYKONAWCZY PROJEKT INSTALACJI SANITARNYCH PROJEKT INSTALACJI ELEKTRYCZNYCH CHARAKTERYSTYCZNE PARAMETRY BUDYNKU Budynek samodzielny | Wolnostojący Technologia | Murowana Posadowienie | Niepodpiwniczony Kondygnacje | Dwukondygnacyjny z poddaszem użytkowym Dach | Dwuspadowy 400 Wysokość | 7,57 >< Wysokość od poziomu parteru 7,10 (m) Wymiary | 11,30 x 6,19 (m) Powierzchnia użytkowa netto – 86,35 m2 Powierzchnia zabudowy – 69,94 m2 | < 70 (m2) Kubatura (m3) – 437,76 m3

Rzuty pięter

Piętro 0

Pomieszczenia

Salon

29

Kuchnia

7

Łazienka

4

Korytarz

7

Pokój

4

Szczegóły projektu

Ogólne

  • Styl budownictwaNowoczesna stodoła
  • Typ zabudowyDom jednorodzinny
  • Typ konstrukcjiMurowany
  • Ilość kondygnacji1
  • Ilość pokoi5
  • Ilość łazienek1
  • Ilość sypialni0
  • GarażNie
  • PoddaszeTak
  • Typ poddaszaUżytkowe

Działka

  • Minimalna szerokość działki15 m
  • Minimalna długość działki11 m

Dach

  • Typ dachuDwuspadowy
  • Wysokość dachu2 m
  • Kąt nachylenia dachu45°

Budynek

  • Długość elewacji6.5 m
  • Szerokość elewacji6.5 m
  • Powierzchnia użytkowa86.35 m²
  • Powierzchnia zabudowy70 m²
  • Powierzchnia netto69 m²
  • Kubatura437 m³
  • Wysokość budynku8 m

0,00 zł

Najniższa cena z ostatnich 30 dni:0,00 zł

Skontaktuj się

Architekt

Krzysiek Klient

Krzysiek Klient

Zobacz projekty
Skontaktuj się